Lot 8 Ridgeline Drive Alnwick/haldimand, Ontario K0K 2G0
Contact Us
Contact us for more information
$1,199,999
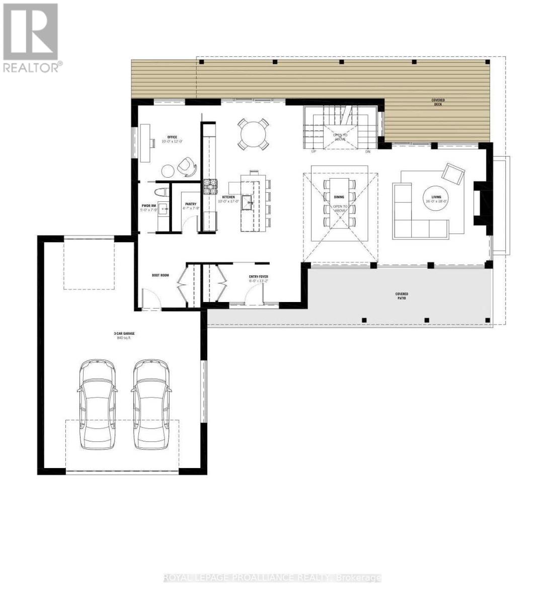
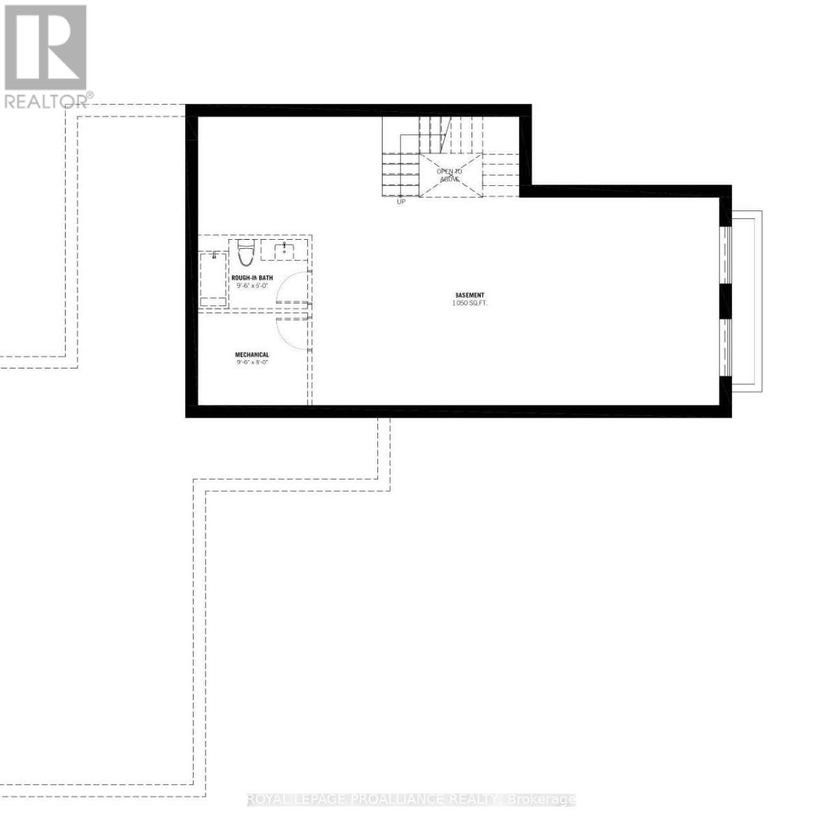
The Ridgeview is a thoughtfully designed two-storey home offering 2,860 sqft of refined living space, ideal for those looking for room to grow without compromising on style or function. A striking front elevation and welcoming covered porch set the tone from the moment you arrive. The main floor is built for both everyday living and entertaining, featuring a spacious kitchen with generous island, separate dining room, and an expansive living room with open-to-above detail that adds light and architectural interest. A main floor powder room and dedicated laundry room add convenience, while the 2-car garage offers ample storage and practicality. Upstairs, the primary suite is a true retreat with a large walk-in closet and beautifully sized ensuite. Two additional bedrooms and a full bath complete the second level, providing comfort and privacy for family or guests. The unfinished basement offers over 2,300 sqft of additional potential, ready to be customized to suit your lifestyle. Situated in the sought-after Grafton Heights community, this home blends modern design with small-town charm. It offers town services, streetlights, and beautiful views of Lake Ontario just minutes away. (id:28302)
Open House
This property has open houses!
11:00 am
Ends at:1:00 pm
Property Details
| MLS® Number | X13011640 |
| Property Type | Single Family |
| Community Name | Grafton |
| Equipment Type | Water Heater - Gas, Water Heater |
| Parking Space Total | 6 |
| Rental Equipment Type | Water Heater - Gas, Water Heater |
Building
| Bathroom Total | 3 |
| Bedrooms Above Ground | 3 |
| Bedrooms Total | 3 |
| Age | New Building |
| Amenities | Fireplace(s) |
| Appliances | Garage Door Opener |
| Architectural Style | Bungalow |
| Basement Development | Unfinished |
| Basement Type | Full, N/a (unfinished) |
| Construction Style Attachment | Detached |
| Cooling Type | Central Air Conditioning |
| Fireplace Present | Yes |
| Fireplace Total | 1 |
| Foundation Type | Concrete |
| Half Bath Total | 1 |
| Heating Fuel | Natural Gas |
| Heating Type | Forced Air |
| Stories Total | 1 |
| Size Interior | 2,500 - 3,000 Ft2 |
| Type | House |
| Utility Water | Municipal Water |
Parking
| Attached Garage | |
| Garage |
Land
| Acreage | No |
| Sewer | Septic System |
| Size Depth | 235 Ft |
| Size Frontage | 112 Ft |
| Size Irregular | 112 X 235 Ft |
| Size Total Text | 112 X 235 Ft |
Utilities
| Cable | Available |
| Electricity | Installed |
https://www.realtor.ca/real-estate/29619792/lot-8-ridgeline-drive-alnwickhaldimand-grafton-grafton







